برای محصولات بیشتر کلیک کنید.
هیچ محصولی پیدا نشد.

فایل های راهنمای تعمیرات ماشین آلات نیو هلند WORKSHOP MANUAL NewHolland

خلاصه مشخصات :

کد کالا:
MCH059

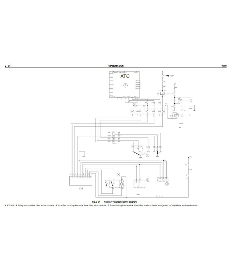
فایل های تعمیر و نگه داری دستگاه های سنگین نیو هلند شامل نقشه های تعمیرات مکانیکی الکترونیکی و نقشه های سیم کشی و هیدرولیکی  برای تمامی مدل های نیو هلند.

این فایل ها دارای 80% مدل های نیوهلند را داراس که مناسب تعمیرکاران جهت پیدا کردن مشکل و مرتفع کردن مشکل دستگاه ها طراحی شده است.
این فایل بصورت دانلودی و یا ارسال دی وی دی میباشد.
حجم فایل ها حدود 4.5 گیگابایت بیش از 100 نوع مدل را دارا میباشد.
بعد از خرید نوع دریافتی در واتساپ یا روبیکا به شماره 09120146259 اطلاع دهید.

 

ادامه مطلبShow less
موجود
قیمت: 390,000 تومان
توضیحات

بخش تعمیرات مکانیکی شامل نحوه باز و بست تمامی قسمت های موتور ، گیربکس و ... و بخش تعمیرات الکترونیکی شامل راهنمای تعمیرات تجهیزات الکترونیکی و نقشه های سیم کشی و بخش تعمیرات هیدرولیکی شامل تعمیرات هیدرولیک و دیاگرام های مربوطه میباشد.

این برنامه را میتوانید در سیستم عامل های 7 - 10 ورژن های 32 و 64 بیتی نصب کنید.

زبان : انگلیسی

فرمت : PDF

 

ادامه مطلبShow less
جزئیات محصول
MCH059

مشخصات

نوع نرم افزار
فایل تعمیرات
ویندوز های قابل نصب
32 بیتی و 64 بیتی
پشتیبانی نصب
نصب بصورت از راه دور با برنامه های ریموت ANY DESK - AMMYY
اموزش استفاده
بله
مدت پشتیبانی
6 ماه
نوع بروز رسانی
ارسال مجدد ورژن جدید
امکان دیکد شاسی
خیر
امکان جستجو داخل نرم افزار
بله
نمایش تصاویر
بله
ورژن
آخر نسخه موجود تا به امروز
نظرات
هنوز نظری برای این محصول ثبت نشده است
محصولات مرتبط
99,000 تومان
نرم افزار راهنمایی برای تعمیرات مکانیکی و الکترونیکی خودروی تویوتا پریوس تایپ سی از سال 2016  تا 2018 شامل تمامی دستور العمل های تعمیرات و عیب یابی مکانیکی (باز، بست- موتور،گیربکس،بدنه،تعلیق و...) والکترونیکی (تجهیزات...
99,000 تومان
نرم افزار راهنمایی برای تعمیرات مکانیکی و الکترونیکی خودروی لکسوس LX570 شامل تمامی دستور العمل های تعمیرات و عیب یابی مکانیکی (باز، بست- موتور،گیربکس،بدنه،تعلیق و...) والکترونیکی (تجهیزات ،یونیت ها و نقشه های سیم کشی)...
99,000 تومان
نرم افزار راهنمایی مختص تعمیرات مکانیکی و الکترونیکی خودروی تویوتا Camry 2015 شامل کلیه دستور العمل های تعمیرات و عیب یابی مکانیکی (باز، بست- موتور،گیربکس،بدنه،تعلیق و...) والکترونیکی (تجهیزات ،یونیت ها و نقشه های سیم...
150,000 تومان
راهنمای تعمیرات و نگهداری خودرو چری تیگو 8 پرو - Chery Tiggo 8 proفرمت: PDFزبان: انگلیسیبرای مدل های :   TIGGO8TCVT25-T1D  -  1.6T+7DCTفیلم آموزش دانلود فایل از سایت بعد از خرید - لمس/کلیک کنیدبعد از خرید وارد بخش...
150,000 تومان
حزو آموزشی فارسی سیستم برق خودرو های فونیکس تیگو 7 پرو - تیگو 8 پروفرمت فایل: PDFزبان: انگلیسیتعداد صفحات: 158فیلم آموزش دانلود فایل از سایت لمس/کلیک کنیدبعد از خرید وارد بخش حساب کاربری من سپس بخش تاریخچه سفارشات سپس...
250,000 تومان
نرم افزار ای پی سی تویوتا و لکسوس نام نرم افزار قطعه یابی و قطعه شناسی خودروهای تویوتا و لکسوس میباشد که مشتمل بر شماره فنی و نقشه های انفجاری تمام قطعات خودروهای تویوتا و لکسوس به همراه شماره فنی تمام قطعات آنها...

فهرست

خانه